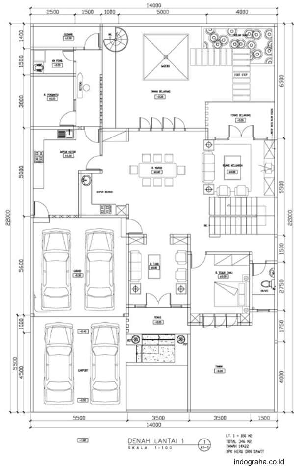
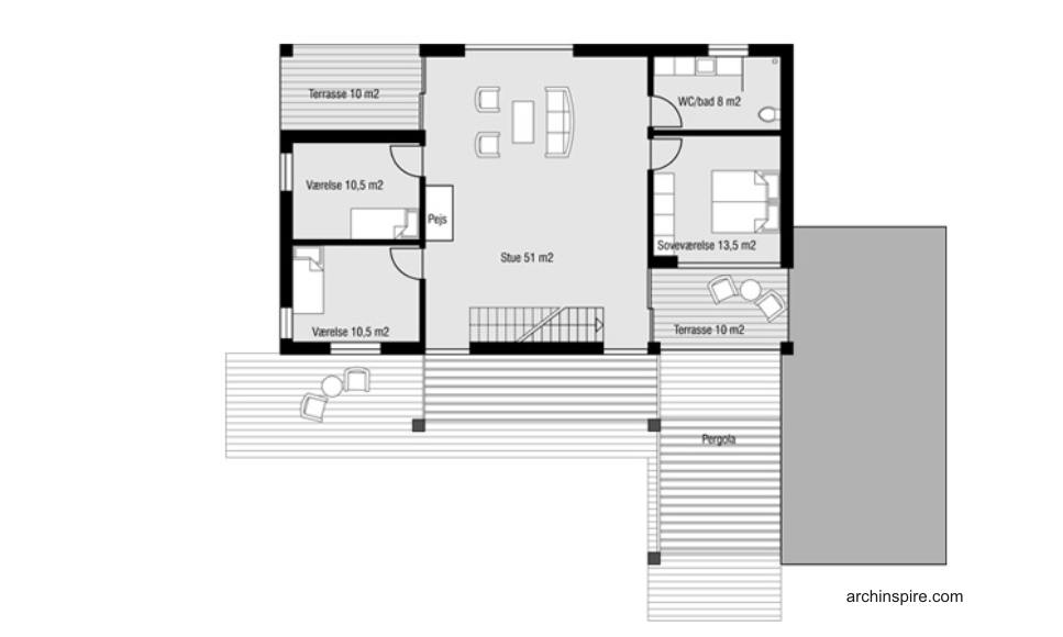
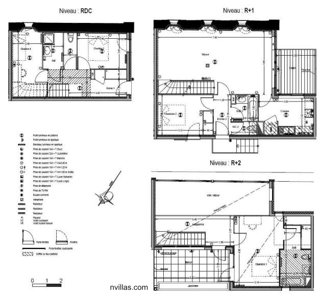
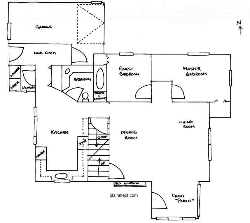
Hasil browsing sana-sini akhirnya terkumpul juga lebih dari 20 denah rumah tinggal dari model rumah biasa sampai denah rumah mewah, siapa tau ada yang lagi nyari denah rumah idaman-nya bisa ambil disini. Semua gambar denah rumah minimalis dibawah ini memang saya ambil dari sana-sini tapi tentunya semua alamat url asal gambarnya tetap saya cantumkan di fotonya, mungkin saja ada yang mau lihat sumbernya langsung. Kalau ada yang mau lihat contoh2 interior rumah minimalis juga bisa dilihat disini dan disini.































Bisa dibuatkan perkiraan biaya untuk desain rumah dengan luas tanah 60 m2, yang denahnya ada di atas?
Ibu bisa cek di halaman konsultasi desain kami diwebsite ini… 🙂
waaaah banyak gambarnya, ngga usah ke mana2 udah ngumpul di sini. terima kasih yaaa
gambarnya bagus… kalo bisa ada gambar file auto cadnya juga… biar bisa di download..
jadi masukan buat kami deh.. nanti klo ktmu linknya kami posting deh
denah rumah tradisional jogja ada gak…
bagus…. bs jd inspirasi q… trim..
bagus…. bs jd inspirai… trim..